


152 000 ₽/м²
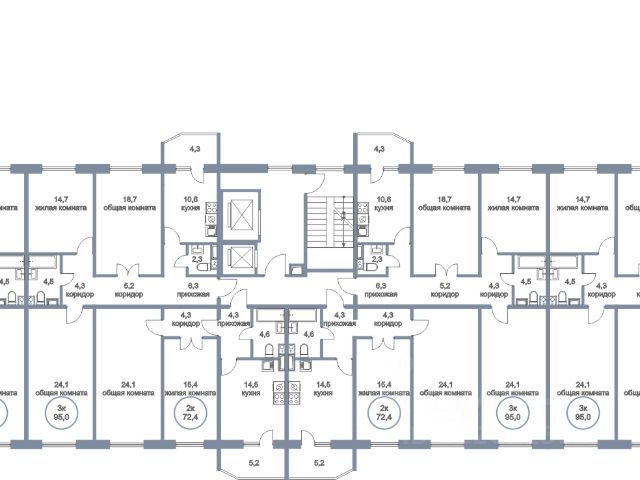
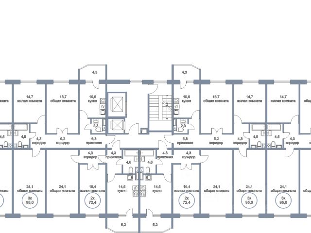
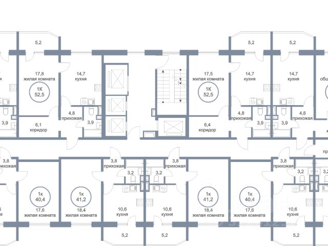
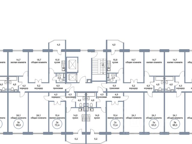
Продаётся 3-комнатная квартира 72,71 м² в жилом квартале "Столица" в микрорайоне 30А. Планировка удобна для ежедневной жизни: есть чёткое разделение приватной и общей зон, место под системы хранения и зону кухни/гостиной. Квартира с отделкой (доступны различные виды отделки: черновая, стандарт, комфорт) от застройщика: при вариантах "Стандарт" и "Комфорт" можно заехать сразу после сделки, при черновой отделке — реализовать свой проект без демонтажа чужого ремонта. Этаж: 16. ЖК "Столица" — первый квартал в Сургуте со "столичной" архитектурой: современные фасады с подсветкой, панорамные окна и закрытые дворы без машин. Весь транспорт вынесен за периметр дворов, по периметру и в подъездах работает система видеонаблюдения — двор, входы и парковки находятся под контролем 24/7. Дворовая территория поделена на шесть продуманных зон: детские площадки для разных возрастов, спортивная зона, хоккейная коробка, которая зимой превращается в каток, спокойные зоны отдыха и пространство "Притяжение" для встреч и общения. Это даёт понятный сценарий жизни во дворе: детям есть где играть, взрослым — где посидеть и позаниматься спортом, при этом потоки не пересекаются. Входные группы организованы с уровня земли: без высоких ступеней и пандусов, удобно с коляской, самокатом, велосипедом и для пожилых жителей. На входе — трёхуровневая система грязезащиты (улица — тамбур — холл), которая задерживает снег и грязь ещё у порога и помогает сохранять чистоту в подъездах. В каждом подъезде предусмотрены колясочные и кладовые — можно убрать коляски, сезонные вещи и спортинвентарь из квартиры. На первых этажах запланированы кафе, пекарни, аптеки, полезные сервисы и пункты выдачи заказов, чтобы большую часть повседневных дел можно было решать внутри квартала. Микрорайон 30А — сложившийся район с готовой инфраструктурой вокруг "Столицы": в шаговой доступности несколько детских садов и школ, лицей, спортивная школа, поликлиника, крупные супермаркеты и парк за Саймой. Рядом остановки общественного транспорта и удобный выезд на основные магистрали города. Квартира в "Столице" — вариант для тех, кто хочет московский уровень двора, входных групп и инфраструктуры, но с сургутским адресом и понятной ценой входа.























































































































