Первичная продажа



1 акция
С отделкой
сдача ГК: 3 кв. 2027 года
9 230 000 ₽
187 221 ₽/м²
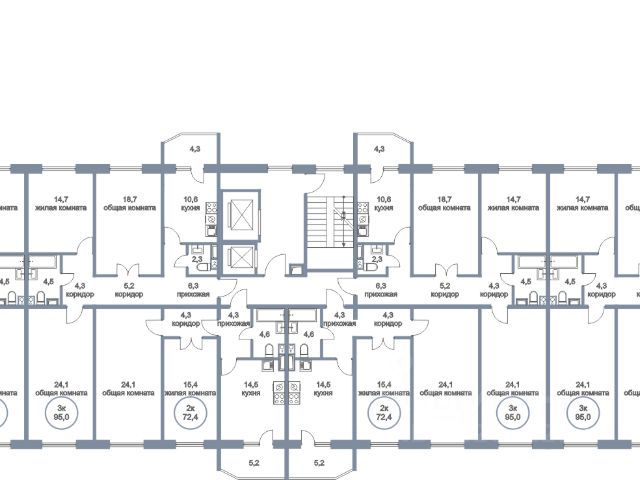
Продается 1-комн. квартира от застройщика с предчистовой отделкой в ЖК "Нефть" на 7 этаже. Общая площадь: 49.3 кв.м., жилая: 15.7 кв.м., площадь просторной кухни-гостиной: 20.6 кв.м. Все окна выходят на одну сторону. В квартире одна лоджия, один совмещенный санузел. Высота потолков 2.7 м.
Квартира с кухней-гостиной и одной спальней в квартале "Нефть". Особенности планировки: гардеробная, лоджия, предчистовая отделка.
квартиры в нашей базе: НФТ02-Ж4.7.2.
Квартал "Нефть" построят в микрорайоне "нефтяников". Квартал состоит из четырёх жилых домов 7 — 9 этажей с акцентной башней в 17 этажей, подземными автостоянками и помещениями коммерческого назначения.
Квартал находится в юго-западной части Сургута на пересечении Набережного проспекта и улицы Артёма. В районе уже сформированная инфраструктура. Рядом расположены три детских сада, университеты, парк и спортивная база. На первых этажах квартала спроектированы коммерческие помещения под повседневные сервисы для жителей: магазины, кафе, аптеки и другие полезные функции.
Дом имеет переменную высотность 717 этажей. Секции высотой 7-9 этажей подразумевают небольшое количество соседей, спокойствие и приватность. Башня высотой в 17 этажей предлагает более динамичный характер проживания, здесь будет комфортно любителям активного городского ритма жизни.
Дворы приватные и предназначены только для жителей. По стандартам Брусники зелень занимает 70% территории. В квартале "Нефть" озеленение выполнено по принципу долголетия ландшафта: оно плотное, разнообразное и многоярусное. Самый верхний ярус — взрослые деревья со сформированной кроной и высокие кустарники, ниже располагаются массивы кустарников среднего размера, нижний ярус — травы, многолетники и газон. Все растения подобраны с учётом сезонности и календаря цветения и сурового климата северного города. Осенью цвет ландшафта обеспечивает листва деревьев и кустарников, летом — цветение многолетников, зимой — вечнозелёные хвойные растения и кустарники с декоративными свойствами стеблей.
В проекте доступна программа обмена: мы выкупим вашу старую квартиру, направим средства на оплату новой и сопроводим сделку. Доступны опции: проживание до 30 месяцев, закрытие ипотеки, выделение детских долей, получение средств на ремонт. Купить 1-комнатную квартиру в новостройке с отделкой в Сургуте.






























































































































































