Мы используем куки-файлы. Соглашение об использовании

Продается 3-комн. квартира, 79,4 м²

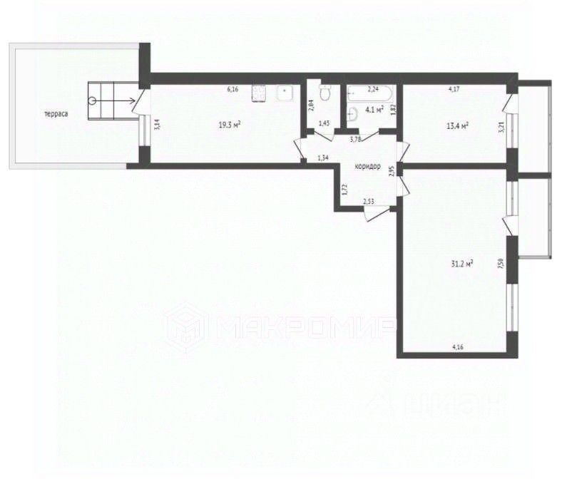
Квартира с террасой!

Общая площадь79,4 м²
Жилая площадь32,7 м²
Площадь кухни31,2 м²
Этаж2 из 6
Год постройки2021
Арт. 129089999 Евро-формат с террасой, гибкой планировкой и потолками 3м. Продается квартира в предчистовой отделке (White Box) рядом с парком "На Сайме". Дом комфорт-класса: закрытый двор, шлагбаум, 5 квартир на этаже. В доме имеется отапливаемый подземный паркинг. Планировочные решения: В квартире 2 стояка, что дает простор для фантазии дизайнера. Текущая планировка: Огромная кухня-гостиная 31,2 м² (2 окна + лоджия), родительская спальня с теплой лоджией, солнечная детская с выходом на террасу 16 м². Возможность перепланировки: Можно организовать кухню-гостиную в комнате 19,3 м² с выходом на террасу, а комнату 31,2 м² разделить на две жилые зоны, плюс родительская спальня. Санузел раздельный. Состояние и коммуникации: Стены подготовлены под декоративную штукатурку. Электрика заменена, новый автомат. В лоджиях теплый пол и выводы электрики. Показы по предварительной договоренности.
Позвоните автору
Вам ответят на все вопросы

О квартире

Тип жилья

Вторичка

Общая площадь

79,4 м²

Жилая площадь

32,7 м²

Площадь кухни

31,2 м²

Высота потолков

3 м

Санузел

1 раздельный

Балкон/лоджия

2 лоджии

Вид из окон

На улицу и двор

Ремонт

Без ремонта

О доме

Год постройки

2021

Количество лифтов

1 пассажирский

Тип перекрытий

Железобетонные

Подъезды

3

Отопление

Центральное

Аварийность

Нет

Спросите умного помощника
Получите экспертное мнение о жилье

Расположение

Ипотечный калькулятор
  • Базовая
  • Семейная
  • ИТ-ипотека
  • 20%
  • 30%
  • 40%
  • 50%
лет
  • 10 лет
  • 20 лет
  • 30 лет
Загружаем предложения от застройщика и банков
Помощь риелтора
Проверенный риелтор поможет купить или продать квартиру
13 000 000 ₽
Цена за метр
163 728 ₽/м²
Условия сделки
свободная продажа
Ипотека
возможна
Агентство недвижимости
Документы проверены