Мы используем куки-файлы. Соглашение об использовании

Сдается склад, 3 500 м²

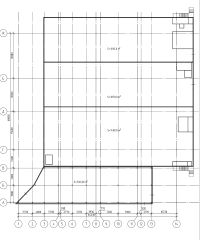
Площадь3 500 м²
Этаж1 из 1
Выс. потолков5.0 м.
Складское помещение расположено в восточном районе города, на территории охраняемого складского комплекса. Общая площадь 3500 м. кв., высота потолков 5 м., оснащено двумя разрузо-погрузочными группами с пандусом и ж/д тупиком, административными помещениями, с\узлами.
lock

Войдите или зарегистрируйтесь
для просмотра информации

Просматривайте условия сделки и всю информацию об объекте
Сохраняйте фильтры в поиске и не вводите заново
Доступ к избранному с любого устройства
Неограниченное добавление в избранное
Позвоните автору
Вам ответят на все вопросы
Остались вопросы по объявлению?
Позвоните владельцу объявления и уточните необходимую информацию.
  • Инфраструктура
  • Похожие рядом
  • Тип зданияПроизводственно-складской комплекс
  • Площадь участка0 га
  • Общая площадь3 500 м²
  • Статус участкаВ собственности
Естественная вентиляция
Центральное отопление
Гидрантная система пожаротушения
Помощь надёжных риелторов
Риелтор партнёр Циан поможет купить или продать любую недвижимость
1 925 000 ₽/мес.

Прямая аренда (от года), минимальный срок аренды 11 месяцев, предоплата за 1 месяц

27 033 $/мес.
23 321 /мес.
Цена за метр
6 600 ₽ в год
Налог
НДС включен: 346 500 ₽
Комиссия
20%
Коммунальные платежи
не включены
Эксплуатационные расходы
включены
Агентство недвижимости
Суперагент