Мы используем куки-файлы.
Соглашение об использовании
Умный помощник
+ Разместить за 0 ₽
Войти
Аренда
Продажа
Новостройки
Дома и участки
Коммерческая
Ипотека
Мой дом
Сервисы
Приложение Циан
Ещё
Ещё
Ещё
Фотографии (0)
Описание
Расположение
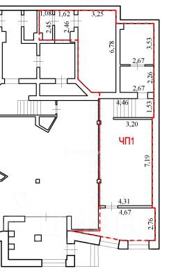
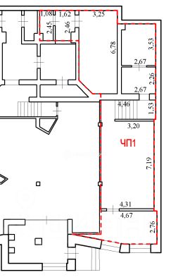
Помещение свободного назначения, 110 м²
Недвижимость в Сургуте
Коммерческая
Аренда нежилых помещений в Сургуте
улица Иосифа Каролинского
Обновлено: 13 мар, 21:00
14 просмотров, нет за сегодня
Объявление снято с публикации
Сдается помещение свободного назначения, 110 м²
Ханты-Мансийский АО
,
Сургут
,
ул. Иосифа Каролинского
,
13
Площадь
110 м²
Этаж
1 из 1
Помещение
Свободно
Объявление снято с публикации, поищите ещё что-нибудь
Войдите или зарегистрируйтесь
для просмотра информации
Войти
Просматривайте условия сделки и всю информацию об объекте
Сохраняйте фильтры в поиске и не вводите заново
Доступ к избранному с любого устройства
Неограниченное добавление в избранное
110 000 ₽/мес.
Прямая аренда (от года), доступны арендные каникулы, предоплата за 1 месяц
1 380 $/мес.
1 193 €/мес.
Цена за метр
12 000 ₽ в год
Налог
НДС не включен
Комиссия
нет
Коммунальные платежи
включены
Эксплуатационные расходы
не включены
Агентство недвижимости
МАКРОМИР
Документы проверены
Риелтор
Дмитрий Горбик