119 940 ₽/м²
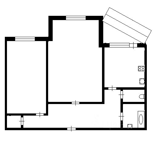
Продаётся уютная 3х комнатная квартира площадью 66.7 квадратных метров на 16 этаже 17 панельного дома, расположенного в приятном районе города Сургута по адресу: 42-й микрорайон, улица Есенина, дом 4. Квартира обладает продуманной планировкой: жилая площадь составляет 30 квадратных метров, а кухня занимает удобные 17 квадратных метров, предоставляя достаточно места как для приготовления пищи, так и для семейных ужинов. В квартире выполнен качественный евро ремонт, что позволит новым владельцам сразу же обустроиться без дополнительных вложений и ремонтных работ. Наличие раздельного санузла добавляет комфорта в повседневное использование жилья. Из окон открывается приятный вид на двор и улицу, благодаря чему в помещениях всегда много естественного света. Для активного отдыха и развлечений на свежем воздухе во дворе дома оборудованы детская и спортивная площадки, где можно проводить время всей семьей. А безопасная парковка со шлагбаумом избавит от переживаний за автомобиль. Развитая инфраструктура района включает в себя школу и детский сад, что особенно удобно для семей с детьми. Рядом расположены парки, где можно насладиться прогулками на природе, а также различные магазины и супермаркеты, среди которых Бристоль, Магазин у дома и Монетка. Для любителей вкусной еды поблизости находятся кафе и рестораны Формула вкуса, кафе-кондитерская и Лепешка. Приобретая эту квартиру, вы выбираете комфортное и качественное жилье в прекрасном районе Сургута, где созданы все условия для приятной и спокойной жизни. Продам 3-комнатную квартиру в микрорайоне 42-й в городе Сургут.


















































































